
Силос для зберігання та транспортування корму 22,4 м3, 14,6 т, 250-4
- Під замовлення
- Код: 0007
Відправка з 31 травня 2026Ціну уточнюйте
Силос 250-4 призначений для ефективного зберігання та подачі кормів із максимальною щільністю до 650 кг/м³. Виконаний із високоякісної гофрованої сталі, він відзначається довговічністю, захистом від корозії та забезпечує стабільний мікроклімат всередині.
Модель 250-4 є сучасним рішенням для тваринницьких господарств, які прагнуть надійності й економічності. Використання технології профілювання сталі робить конструкцію стійкою до високих навантажень і погодних впливів. Завдяки точній геометрії деталей монтаж стає простим і безпечним, а експлуатація силосу — довготривалою.
Детальний опис технічних характеристик
-
Матеріал – гофрована сталь із підвищеною стійкістю до корозії.
-
Призначення – засип та зберігання кормів (щільність до 650 кг/м³).
-
Особливості монтажу:
-
точне виставлення ніжок із допуском ±2 мм;
-
необхідність ідеального вертикального положення ніжок;
-
лійка при засипанні видовжується, тому обладнання під нею повинно мати телескопічні з’єднання з ходом не менше 1 см.
-
-
Експлуатаційні обмеження:
-
не призначений для монтажу на тензометричних системах;
-
не використовується на проїзних і транспортних конструкціях із динамічним розвантаженням;
-
розрахований для кліматичних умов з вітровими навантаженнями до 30 м/с і сніговими до 1,2 кН.
-
-
Монтаж – здійснюється підйомом зібраної конструкції у вертикальне положення з обов’язковим додатковим укріпленням ніжок.

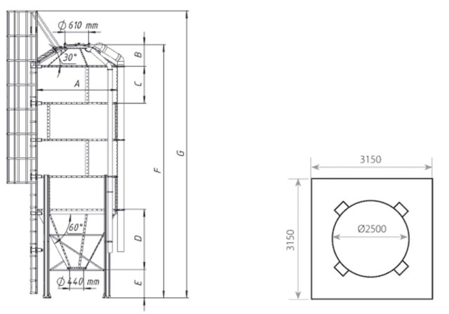
Таблиця технічних характеристик
| Модель | Діаметр [м] (A) | Об’єм [м³] | Вміст корму [т]* | Кількість ніжок | B [мм] | C [мм] | D [мм] | E [мм] | F [мм] | G [мм] |
|---|---|---|---|---|---|---|---|---|---|---|
| 250-4 | 2,5 | 22,4 | 14,6 | 4 | 672 | 902 | 1803 | 750 | 6833 | 7220 |
* Перерахунок для корму щільністю 0,65 т/м³.

Переваги
-
Висока міцність завдяки гофрованій сталі.
-
Стійкість до корозії.
-
Простота монтажу й обслуговування.
-
Стабільна температура корму всередині.
-
Адаптований до роботи в різних кліматичних умовах.
Силос 250-4 — це надійне рішення для ферм, що цінують довговічність та безпеку при зберіганні кормів.
| Основні | |
|---|---|
| Модель | 250-4 |
| Об'єм [м3] | 22,4 |
| Вміст корму [т]* | 14,6 |
| Кількість ніжок | 4 |
| B [мм] | 672 |
| C [мм] | 902 |
| D [мм] | 1803 |
| E [мм] | 750 |
| F [мм] | 6833 |
| G [мм] | 7220 |
| Діаметр [м] (A) | 2.5 |
- Ціна: Ціну уточнюйте
